Neubau Einfamilienhaus in Obersendling
test2
Neu
Übersicht Einfamilienhaus in München-Obersendling
Kaufpreis: 1.790.000,- €
- inklusive einem Carport!
| Grundstücksfläche | 369,0 m2 |
| Wohnfläche | ca. 142,0 m2 |
| Baujahr | 2026 |
| Bauweise | massiv |
| Zimmer inkl. Wohnen und Küche | 5 |
| 3 |
| 1 |
| 1 |
| Terassen | 1 |
| bezugsfrei ab | nach Vereinbarung |
In einer ruhigen und gewachsenen Seitenstraße in München-Obersendling entsteht auf einem ruhigen Grundstück Ihr neues Zuhause – ein modernes Einfamilienhaus, das zeitgemäßen Wohnkomfort mit nachhaltiger Bauweise verbindet. Ausgestattet mit Wärmepumpe und Photovoltaikanlage erfüllt das Haus im angebotenen Leistungsumfang die Voraussetzungen für eine KfW-Förderung und bietet damit zukunftssicheres Wohnen für viele Jahre.
Der Kaufpreis umfasst bereits alles, was den Traum vom
Mehr lesen
Eigenheim greifbar macht: das Grundstück, Erd- und Kanalbau, Hausanschlüsse, liebevoll geplante Außenanlagen, das schlüsselfertige Einfamilienhaus auf Bodenplatte, ein Carport sowie sämtliche unter „Ausstattung“ aufgeführten Leistungen. Lediglich die Kosten für Abriss und Entsorgung des bestehenden Altbestandes sind von den Erwerbern zusätzlich zu übernehmen.
Sie wünschen sich noch mehr Raum für Ihre individuellen Wohnideen? Kein Problem. Gemeinsam mit unserem erfahrenen Baupartner kann auf diesem Grundstück auch ein größeres Haus mit bis zu ca. 225 m² Wohnfläche realisiert werden. Ob offenes Wohnen, Homeoffice, zusätzliche Kinderzimmer oder besondere Ausstattungswünsche – Gestaltung, Grundriss und Ausstattung lassen sich ganz nach Ihren persönlichen Vorstellungen anpassen.
Hinweis: Wir sind als Makler ausschließlich mit dem Verkauf des Grundstücks beauftragt. Die Käuferprovision in Höhe von 3,57 % inkl. MwSt. fällt ausschließlich auf den Grundstückskaufpreis an. Die Planung und Beauftragung des Hausbaus erfolgen direkt mit der Baufirma.
Das Titelbild zeigt ein baugleiches Einfamilienhaus, das an einem anderen Standort bereits erfolgreich realisiert wurde.
Ausstattung
Holz-Alu-Fenster
Massivholztreppe
Echtholzparkett
Elektrische Raffstore an allen Fenstern
Carport mit Starkstromanschluss
Luft-Luft-Wärmepumpe
PV-Anlage (10 kWp) mit Speicher (ca. 11,4 kW)
Aufpreis für Keller inkl. Kellerausbaupaket ca. 90.000 €
Hinweis: Wir sind als Makler ausschließlich mit dem
... noch mehr Ausstattung finden Sie im Exposé:
Lage
Die Karte zeigt nicht den exakten Standort der Immobilie an. Laden Sie dazu das Exposé herunter.
Daten zu München-Obersendling
| Postleitzahl | 81477 |
| Landkreis | München |
| Höhe NN | 565 m |
| Einwohner | 104 |
Umgebung
München-Obersendling, das im Südwesten der bayrischen Landeshauptstadt liegt, ist ein prosperierendes Viertel, das urbanes Leben mit grünen Oasen verbindet. Obersendling ist umgeben vom Isarhochufer im Osten und der S-Bahn-Trasse im Westen. Die Trockenlegung und Entwicklung des Areals begann im 20. Jahrhundert und hat es seither von einer Industrie- und Gewerbezone zu einem attraktiven Wohngebiet transformiert.
Zum Flanieren am Ufer lädt die Isar, die nur einen Steinwurf entfernt fließt und mit ihren gepflegten Uferwegen ideale Voraussetzungen für Spaziergänger, Jogger und Radfahrer bietet. Für Erholung sorgen auch die umliegenden Parks und Grünflächen wie der Westpark und der weitreichende Forstenrieder Park im Süden.
Lage der Immobilie
Das Grundstück befindet sich an der Grenze zwischen Obersendling und Solln. Das Umfeld ist geprägt von charmanten Einfamilienhäusern, modernen Mehrfamilienhäusern und gepflegten Grünflächen.
- Bus 136: ca. 2 Gehminuten
- Bus 63, N47: ca. 6 Gehminuten
- Netto: ca. 6 Gehminuten
- Aldi, REWE, Lidl, Alnatura innerhalb von 1 km
- mehrere Restaurants innerhalb von 15 Gehminuten
- mehrere Kitas/Kindergärten in der Nachbarschaft
- Grundschule: ca. 20 Gehminuten
Mit dem ÖPNV von der Haustür zum...
... Marienplatz: ca. 28 Minuten
... Hauptbahnhof: ca. 30 Minuten
... Flughafen: ca. 1:20 Stunden
Maklervertrag
Der Makler-Vertrag mit uns und/oder unserem Beauftragten kommt durch die Beauftragung der Maklertätigkeit in Textform (z.B. Web-Formular oder E-Mail mit Bestätigung der gewollten Inanspruchnahme) zustande. Hiernach wird die Courtage regelmäßig für beide Parteien (Eigentümer und Käufer) jeweils in Höhe von 3% zuzüglich Umsatzsteuer in jeweils geltender Höhe, derzeit also insgesamt 3.57 % des Kaufpreises einschließlich Umsatzsteuer bei notariellem Vertragsabschluss verdient und fällig.Grunderwerbssteuer, Notar- und Gerichtskosten trägt der Käufer.
Diese Immobilie bieten wir an in Kooperation mit Lehmann Hueber Immobilien GmbH .
Energieausweis
| Energieausweis-Typ | Bedarfsausweis |
| Gültig bis | 25.09.2035 |
| Wesentlicher Energieträger | Luft-Wasser-Wärmepumpe |
| Weitere Energieträger | Strom |
| Endenergieverbrauch | 14.1 kWh/m2 pro Jahr |
| Energieeffizinzklasse | A+ |
| Warmwasser enthalten | Nein |
Aussenansicht
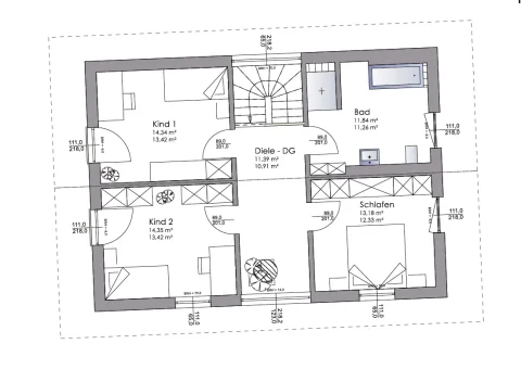
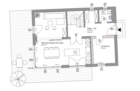
Grundriss
Weitere Infos über München-Obersendling
Einkaufen
- REWE Supermarkt
- ALDI Süd
- dm-Drogeriemarkt
- Bäckerei Schmidt
- Wochenmarkt Plinganserstraße (jeden Freitag)
Bildung & Freizeit
Schulen & Bildung
Kindertagesstätten (KiTas) und Kindergärten
- Kita Kinderhaus Obersendling
- Kindertagesstätte Kibusch
- Kinderhaus Unter den Kastanien
- Städtischer Kindergarten Osterwaldstraße
Schulen
- Grundschule Münchner Straße
- Mittelschule an der Drygalski-Allee
- Förderzentrum an der Münchner Straße
- Private Wirtschaftsschule Krauss
Weiterbildungsmöglichkeiten
- Volkshochschule SüdOst im Bürgerhaus München-Solln
- Goethe-Institut München
Freizeit & Vereine
- TSV München-Solln e.V. – Sportverein mit Angeboten von Fußball über Tennis bis hin zu Yoga.
- SC München Süd – Fußballverein für Jugendliche und Erwachsene.
- MTV 1879 München e.V. – Mehrspartenverein mit Angeboten im Bereich Fitness, Leichtathletik, Hockey, Fechten, Tennis und mehr.
- Forstenrieder SC – Sportverein mit Schwerpunkt auf Fußball und Tennis.
- Eissportclub München e. V. – Eissportverein mit Angeboten im Bereich Eishockey und Eiskunstlauf.
Und noch mehr
- Erholung an der Isar – Die nahegelegene Isar lädt zu Spaziergängen, Picknicks und Radtouren ein.
- Baden – Das Kombibad Forstenried und das Südbad bieten Schwimm- und Saunaangebote.
- Spielen – Mehrere Spielplätze für Kinder sind in Obersendling vorhanden, darunter der Spielplatz Leutstettener Straße und der Spielplatz am Forst Kasten.
- Kultur – Das Stadtteilarchiv Solln informiert über die Geschichte des Viertels, der Bosch-Bungalow bietet kulturelle Veranstaltungen an.






