Neubau-Doppelhaushälfte mit Südgarten im Münchner Süden
test2
Neu
Übersicht Doppelhaushälfte in München-Obersendling
Kaufpreis: 1.350.000,- €
- inklusive einem Carport!
| Grundstücksfläche | 300,0 m2 |
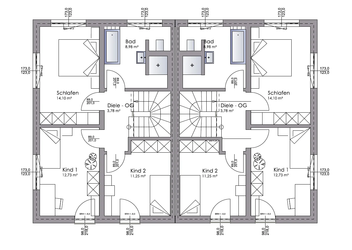
| Wohnfläche | ca. 137,0 m2 |
| Baujahr | 2026 |
| Bauweise | Holzständer |
| Zimmer inkl. Wohnen und Küche | 5 |
| 4 |
| 1 |
| 1 |
| Terassen | 1 |
| bezugsfrei ab | nach Vereinbarung |
Auf einem 601 m² großen Eckgrundstück sind zwei
Mehr lesen
Doppelhaushälften geplant. Beide Haushälften sind noch verfügbar und erfüllen mit dem angebotenen Leistungsumfang die Anforderungen für eine KfW-Förderung. Im genannten Kaufpreis enthalten sind der Grundstücksanteil (ca. 300 m²), Erd- und Kanalbau, Hausanschlüsse, Außenanlagen, das schlüsselfertige Haus auf Bodenplatte, ein Carport sowie die unter "Ausstattung" aufgeführten Bestandteile. Die Kosten für Abriss und Entsorgung des Altbestandes sind von den Erwerbern zusätzlich zu übernehmen. Individuelle Sonderwünsche bzgl. Gestaltung, Grundriss und Ausstattung können selbstverständlich berücksichtigt werden.
Hinweis: Wir sind als Makler mit dem Verkauf des Grundstücks beauftragt. Die Käuferprovision in Höhe von 3,57 % inkl. MwSt. entfällt nur auf den Grundstückskaufpreis. Planung und Beauftragung des Hausbaus erfolgt direkt mit der Baufirma.
Ausstattung
- Holz-Alu-Fenster
- Massivholztreppe
- Echtholzparkett
- Elektrische Raffstore an allen Fenstern
- Carport mit Starkstromanschluss
- Luft-Luft-Wärmepumpe
- PV-Anlage (10 kWp) mit Speicher (ca. 11,4 kW)
- Aufpreis Keller inkl. Kellerausbaupaket ca. 80.000 €
... noch mehr Ausstattung finden Sie im Exposé:
Lage
Die Karte zeigt nicht den exakten Standort der Immobilie an. Laden Sie dazu das Exposé herunter.
Daten zu München-Obersendling
| Postleitzahl | 81477 |
| Landkreis | München |
| Höhe NN | 565 m |
| Einwohner | 104 |
Umgebung
München-Obersendling, das im Südwesten der bayrischen Landeshauptstadt liegt, ist ein prosperierendes Viertel, das urbanes Leben mit grünen Oasen verbindet. Obersendling ist umgeben vom Isarhochufer im Osten und der S-Bahn-Trasse im Westen. Die Trockenlegung und Entwicklung des Areals begann im 20. Jahrhundert und hat es seither von einer Industrie- und Gewerbezone zu einem attraktiven Wohngebiet transformiert.
Zum Flanieren am Ufer lädt die Isar, die nur einen Steinwurf entfernt fließt und mit ihren gepflegten Uferwegen ideale Voraussetzungen für Spaziergänger, Jogger und Radfahrer bietet. Für Erholung sorgen auch die umliegenden Parks und Grünflächen wie der Westpark und der weitreichende Forstenrieder Park im Süden.
Lage der Immobilie
Das Grundstück befindet sich an der Grenze zwischen Obersendling und Solln. Das Umfeld ist geprägt von charmanten Einfamilienhäusern, modernen Mehrfamilienhäusern und gepflegten Grünflächen.
- Bus 136: ca. 2 Gehminuten
- Bus 63, N47: ca. 6 Gehminuten
- Netto: ca. 6 Gehminuten
- Aldi, REWE, Lidl, Alnatura innerhalb von 1 km
- mehrere Restaurants innerhalb von 15 Gehminuten
- mehrere Kitas/Kindergärten in der Nachbarschaft
- Grundschule: ca. 20 Gehminuten
Mit dem ÖPNV von der Haustür zum...Marienplatz: ca. 28 Minuten
Hauptbahnhof: ca. 30 Minuten
Flughafen: ca. 1:20 Stunden
Maklervertrag, Konditionen
Diese Immobilie bieten wir an in Kooperation mit Lehmann Hueber Immobilien GmbH.Der Makler-Vertrag mit uns und/oder unserem Beauftragten kommt durch die Beauftragung der Maklertätigkeit in Textform (z.B. Web-Formular oder E-Mail mit Bestätigung der gewollten Inanspruchnahme) zustande. Wir sind als Makler ausschließlich mit dem Verkauf des Grundstücks beauftragt. Die Käuferprovision in Höhe von 3,57 % inkl. MwSt. fällt ausschließlich auf den Grundstückskaufpreis von 750.000,- € bei notariellem Vertragsabschluss an.
Grunderwerbssteuer, Notar- und Gerichtskosten trägt der Käufer. Die Planung und Beauftragung des Hausbaus erfolgen direkt mit der Baufirma.
Alle Angaben sind ohne Gewähr und basieren ausschließlich auf Informationen, die uns von unserem Kooperationspartner zur Verfügung gestellt wurden. Wir übernehmen keine Gewähr für die Vollständigkeit, Richtigkeit und Aktualität dieser Angaben.
Energieausweis
| Energieausweis-Typ | Bedarfsausweis |
| Gültig bis | 25.09.2035 |
| Wesentlicher Energieträger | Luft-Wasser-Wärmepumpe |
| Weitere Energieträger | Strom |
| Endenergieverbrauch | 12.2 kWh/m2 pro Jahr |
| Energieeffizinzklasse | A+ |
| Warmwasser enthalten | Nein |
Aussenansicht
Grundriss
Weitere Infos über München-Obersendling
Einkaufen
- REWE Supermarkt
- ALDI Süd
- dm-Drogeriemarkt
- Bäckerei Schmidt
- Wochenmarkt Plinganserstraße (jeden Freitag)
Bildung & Freizeit
Schulen & Bildung
Kindertagesstätten (KiTas) und Kindergärten
- Kita Kinderhaus Obersendling
- Kindertagesstätte Kibusch
- Kinderhaus Unter den Kastanien
- Städtischer Kindergarten Osterwaldstraße
Schulen
- Grundschule Münchner Straße
- Mittelschule an der Drygalski-Allee
- Förderzentrum an der Münchner Straße
- Private Wirtschaftsschule Krauss
Weiterbildungsmöglichkeiten
- Volkshochschule SüdOst im Bürgerhaus München-Solln
- Goethe-Institut München
Freizeit & Vereine
- TSV München-Solln e.V. – Sportverein mit Angeboten von Fußball über Tennis bis hin zu Yoga.
- SC München Süd – Fußballverein für Jugendliche und Erwachsene.
- MTV 1879 München e.V. – Mehrspartenverein mit Angeboten im Bereich Fitness, Leichtathletik, Hockey, Fechten, Tennis und mehr.
- Forstenrieder SC – Sportverein mit Schwerpunkt auf Fußball und Tennis.
- Eissportclub München e. V. – Eissportverein mit Angeboten im Bereich Eishockey und Eiskunstlauf.
Und noch mehr
- Erholung an der Isar – Die nahegelegene Isar lädt zu Spaziergängen, Picknicks und Radtouren ein.
- Baden – Das Kombibad Forstenried und das Südbad bieten Schwimm- und Saunaangebote.
- Spielen – Mehrere Spielplätze für Kinder sind in Obersendling vorhanden, darunter der Spielplatz Leutstettener Straße und der Spielplatz am Forst Kasten.
- Kultur – Das Stadtteilarchiv Solln informiert über die Geschichte des Viertels, der Bosch-Bungalow bietet kulturelle Veranstaltungen an.









