Neubau Einfamilienhaus in Obersendling

Schliessen ×

Neu

Das Bild zeigt ein modernes Einfamilienhaus in München mit weißer Fassade, Holzakzenten und Satteldach. Es besitzt eine großzügige Terrasse, umgeben von einer gepflegten Gartenanlage mit säulenförmigen Bäumen.

Übersicht Einfamilienhaus in München-Obersendling


Kaufpreis: 1.790.000,- €

  • inklusive einem Carport!
Grundstücksfläche 369,0 m2
Wohnfläche ca. 142,0 m2
Baujahr 2026
Bauweise Holzständer
Zimmer inkl. Wohnen und Küche 5
  • davon Schlafzimmer
3
  • zzgl. Gäste-WC
1
  • zzgl. Badezimmer
1
Terassen 1
bezugsfrei ab nach Vereinbarung

In einer ruhigen und gewachsenen Seitenstraße in München-Obersendling entsteht auf einem ruhigen Grundstück Ihr neues Zuhause – ein modernes Einfamilienhaus, das zeitgemäßen Wohnkomfort mit nachhaltiger Bauweise verbindet. Ausgestattet mit Wärmepumpe und Photovoltaikanlage erfüllt das Haus im angebotenen Leistungsumfang die Voraussetzungen für eine KfW-Förderung und bietet damit zukunftssicheres Wohnen für viele Jahre.

Der Kaufpreis umfasst bereits alles, was den Traum vom

Eigenheim greifbar macht: das Grundstück, Erd- und Kanalbau, Hausanschlüsse, liebevoll geplante Außenanlagen, das schlüsselfertige Einfamilienhaus auf Bodenplatte, ein Carport sowie sämtliche unter „Ausstattung“ aufgeführten Leistungen. Lediglich die Kosten für Abriss und Entsorgung des bestehenden Altbestandes sind von den Erwerbern zusätzlich zu übernehmen.

Sie wünschen sich noch mehr Raum für Ihre individuellen Wohnideen? Kein Problem. Gemeinsam mit unserem erfahrenen Baupartner kann auf diesem Grundstück auch ein größeres Haus mit bis zu ca. 225 m² Wohnfläche realisiert werden. Ob offenes Wohnen, Homeoffice, zusätzliche Kinderzimmer oder besondere Ausstattungswünsche – Gestaltung, Grundriss und Ausstattung lassen sich ganz nach Ihren persönlichen Vorstellungen anpassen.


Ausstattung

  • Holz-Alu-Fenster
  • Massivholztreppe
  • Echtholzparkett
  • Elektrische Raffstore an allen Fenstern
  • Carport mit Starkstromanschluss
  • Luft-Luft-Wärmepumpe
  • PV-Anlage (10 kWp) mit Speicher (ca. 11,4 kW)
  • Aufpreis für Keller inkl. Kellerausbaupaket ca. 90.000 €

... noch mehr Ausstattung finden Sie im Exposé:

Lage

Die Karte zeigt nicht den exakten Standort der Immobilie an. Laden Sie dazu das Exposé herunter.

Daten zu München-Obersendling

Postleitzahl 81477
Landkreis München
Land Deutschland
Höhe NN 565 m
Einwohner 104

München-Obersendling, das im Südwesten der bayrischen Landeshauptstadt liegt, ist ein prosperierendes Viertel, das urbanes Leben mit grünen Oasen verbindet. Obersendling ist umgeben vom Isarhochufer im Osten und der S-Bahn-Trasse im Westen. Die Trockenlegung und Entwicklung des Areals begann im 20. Jahrhundert und hat es seither von einer Industrie- und Gewerbezone zu einem attraktiven Wohngebiet transformiert.

Zum Flanieren am Ufer lädt die Isar, die nur einen Steinwurf entfernt fließt und mit ihren gepflegten Uferwegen ideale Voraussetzungen für Spaziergänger, Jogger und Radfahrer bietet. Für Erholung sorgen auch die umliegenden Parks und Grünflächen wie der Westpark und der weitreichende Forstenrieder Park im Süden.

Das Grundstück befindet sich an der Grenze zwischen Obersendling und Solln. Das Umfeld ist geprägt von charmanten Einfamilienhäusern, modernen Mehrfamilienhäusern und gepflegten Grünflächen.

  • Bus 136: ca. 2 Gehminuten
  • Bus 63, N47: ca. 6 Gehminuten
  • Netto: ca. 6 Gehminuten
  • Aldi, REWE, Lidl, Alnatura innerhalb von 1 km
  • mehrere Restaurants innerhalb von 15 Gehminuten
  • mehrere Kitas/Kindergärten in der Nachbarschaft
  • Grundschule: ca. 20 Gehminuten

Mit dem ÖPNV von der Haustür zum...

... Marienplatz: ca. 28 Minuten

... Hauptbahnhof: ca. 30 Minuten

... Flughafen: ca. 1:20 Stunden

Maklervertrag, Konditionen

Diese Immobilie bieten wir an in Kooperation mit Lehmann Hueber Immobilien GmbH.
Der Makler-Vertrag mit uns und/oder unserem Beauftragten kommt durch die Beauftragung der Maklertätigkeit in Textform (z.B. Web-Formular oder E-Mail mit Bestätigung der gewollten Inanspruchnahme) zustande. Wir sind als Makler ausschließlich mit dem Verkauf des Grundstücks beauftragt. Die Käuferprovision in Höhe von 3,57 % inkl. MwSt. fällt ausschließlich auf den Grundstückskaufpreis von 1.200.000,- € bei notariellem Vertragsabschluss an.

Grunderwerbssteuer, Notar- und Gerichtskosten trägt der Käufer. Die Planung und Beauftragung des Hausbaus erfolgen direkt mit der Baufirma.

Alle Angaben sind ohne Gewähr und basieren ausschließlich auf Informationen, die uns von unserem Kooperationspartner zur Verfügung gestellt wurden. Wir übernehmen keine Gewähr für die Vollständigkeit, Richtigkeit und Aktualität dieser Angaben.

Energieausweis

Energieausweis-Typ Bedarfsausweis
Gültig bis 25.09.2035
Wesentlicher Energieträger Luft-Wasser-Wärmepumpe
Weitere Energieträger Strom
Endenergieverbrauch 14.1 kWh/m2 pro Jahr
Energieeffizinzklasse A+
Warmwasser enthalten Nein

Aussenansicht


Das Bild zeigt ein modernes Einfamilienhaus in München mit weißer Fassade, Holzakzenten und Satteldach. Es besitzt eine großzügige Terrasse, umgeben von einer gepflegten Gartenanlage mit säulenförmigen Bäumen.
Beispielbild eines realisierten Einfamilienhauses
Moderne Einfamilienvilla in Obersendling mit weißer Fassade, Flachdach, großen Fensterfronten und Holzelementen. Terrasse und Vorgarten sind mit Ziergehölzen und Sitzmöbeln gestaltet.
Beispielbild
Auf dem Bild sind zwei moderne Einfamilienhäuser (EFH) im Doppelhausstil (DH) zu sehen. Beide haben weiße Fassaden und dunkle Dächer. Im Vordergrund stehen zwei Autos. Menschen sind sichtbar – eine Mutter mit Kind und ein Mann auf einer Terrasse.
Visualisierung Doppelhaus und Einfamilienhaus bei Nacht

Grundriss


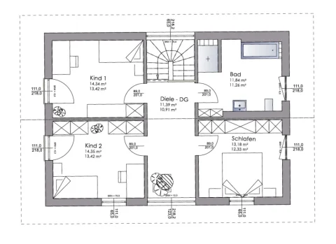
Der Plan zeigt den Obergeschoss-Grundriss eines Einfamilienhauses. Es beinhaltet ein Schlafzimmer, zwei Kinderzimmer, ein großes Bad und eine Diele. Jeder Raum enthält Maßangaben. Zwei Räume sind kreisförmig schraffiert an Wandseiten.
Optimierter Grundriss für EFH Obergeschoss
Das Bild zeigt den Beispiel-Grundriss des Erdgeschosses eines Einfamilienhauses (EFH). Es enthält eine offene Raumgestaltung für Wohnen/Essen/Kochen (39,55 m²), eine Diele (16,91 m²), ein WC (2,66 m²), einen Hauswirtschaftsraum (9,70 m²) und Möbel-Layouts.
Effizienter Grundriss für modernes Einfamilienhaus

Weitere Infos über München-Obersendling

  • REWE Supermarkt
  • ALDI Süd
  • dm-Drogeriemarkt
  • Bäckerei Schmidt
  • Wochenmarkt Plinganserstraße (jeden Freitag)

Bildung & Freizeit

Kindertagesstätten (KiTas) und Kindergärten

  • Kita Kinderhaus Obersendling
  • Kindertagesstätte Kibusch
  • Kinderhaus Unter den Kastanien
  • Städtischer Kindergarten Osterwaldstraße

Schulen

  • Grundschule Münchner Straße
  • Mittelschule an der Drygalski-Allee
  • Förderzentrum an der Münchner Straße
  • Private Wirtschaftsschule Krauss

Weiterbildungsmöglichkeiten

  • Volkshochschule SüdOst im Bürgerhaus München-Solln
  • Goethe-Institut München

  • TSV München-Solln e.V. – Sportverein mit Angeboten von Fußball über Tennis bis hin zu Yoga.
  • SC München Süd – Fußballverein für Jugendliche und Erwachsene.
  • MTV 1879 München e.V. – Mehrspartenverein mit Angeboten im Bereich Fitness, Leichtathletik, Hockey, Fechten, Tennis und mehr.
  • Forstenrieder SC – Sportverein mit Schwerpunkt auf Fußball und Tennis.
  • Eissportclub München e. V. – Eissportverein mit Angeboten im Bereich Eishockey und Eiskunstlauf.

Und noch mehr

  • Erholung an der Isar – Die nahegelegene Isar lädt zu Spaziergängen, Picknicks und Radtouren ein.
  • Baden – Das Kombibad Forstenried und das Südbad bieten Schwimm- und Saunaangebote.
  • Spielen – Mehrere Spielplätze für Kinder sind in Obersendling vorhanden, darunter der Spielplatz Leutstettener Straße und der Spielplatz am Forst Kasten.
  • Kultur – Das Stadtteilarchiv Solln informiert über die Geschichte des Viertels, der Bosch-Bungalow bietet kulturelle Veranstaltungen an.

Teile deine Liebe